Zone les portes du Sud, Marsannay la Côte, plusieurs cellules commerciales sur un axe fréquenté. 3 mn sortie A311 axe Paris/Lyon 8 lots disponibles de 284 à 551 m² environ.
Réf. : 21.1309

Location
MARSANNAY LA COTE (21)
  • 161 910,00 
  • 1799 m² environ

Description

3 mn sortie A311 axe Paris/Lyon

8 lots disponibles de 284 à 551 m² environ.

équipé de portes sectionnelles

dalle béton

Stationnement dédié

Au sein d’un ensemble immobilier composé de plusieurs lots.

Situés sur un axe très fréquenté, ces biens sont accessibles en voiture depuis la Rocade Sud, le centre-ville de Dijon et l’A311. Le réseau de bus DIVIA permet également de se rendre dans cette zone.

De grandes enseignes (Lapeyre, But, …), des concessionnaires automobiles, des restaurants et des supermarchés font de cette zone une zone commerciale très fréquentée.

Détails

Référence : 21.1309
Type de bien : Commerces
Type d'annonce : Location
Superficie : 1799 m² environ
Montant : 161 910,00 
Disponibilité : Immédiate
Département : 21
Ville : MARSANNAY LA COTE
Code postal : 21160
N° de l’offre : 836898

Composition du bien

Détail des surfaces

Superficie des locaux :
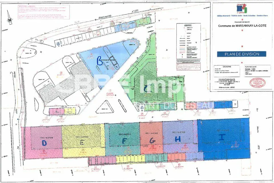
. Lot 5 (E) : 422 m² environ + 11 parkings
. Lot 4 (F) : 352 m² environ + 9 parkings
. Lot 3 (G) : 284 m² environ + 8 parkings
. Lot 2 (H) : 354 m² environ + 10 parkings
. Lot 1 (I) : 387 m² environ + 11 parkings

Détail des tarifs

Loyer annuel :
. Lot 5 (E) : 37.980 Euros HT/HC
. Lot 4 (F) : 31.680 Euros HT/HC
. Lot 3 (G) : 25.560 Euros HT/HC
. Lot 2 (H) : 31.860 Euros HT/HC
. Lot 1 (I) : 34.830 Euros HT/HC
Charges prévisionnelles annuelles (exercice 2024) : 13.13 Euros HT/m².
Taxe foncière (exercice 2021) : 10.19 Euros HT/m².

Desserte
Accès routiers

Rocade Sud, A311

Environnement commercial
Services de proximité
Information sur les parkings

. Lot D : 10 places de parking
. Lot E : 11 places de parking
. Lot F : 9 places de parking
. Lot G : 8 places de parking
. Lot H : 10 places de parking
. Lot I : 11 places de parking

Caractéristiques

Caractéristiques

Conditions commerciales

Conditions commerciales : . Bail commercial : 3/6/9 ans.
. Régime fiscal : TVA.
. Dépôt de garantie : 3 mois de loyer HT.
. Loyer et charges : payables par trimestre d'avance.
. Indexation : annuelle.
. Indice : ILC.
. Tous impôts et charges liés à l'immeuble (notamment foncier) : charge Preneur.
. Honoraires de commercialisation : 15 % HT du loyer annuel global HT à la charge du Preneur (payables à la signature du Bail).
Honoraires : 24286,5

Diagnostic énergétique

DPE : En cours -

Mots clés

Julien DECHAUME
Agence de Dijon

Je consens à ce que le site internet collecte mon Nom, mon Email et mon Téléphone.

Compare Listings

Titre Prix Statut Type Région Objectif Chambres Salles de bain